Bystrica24.sk

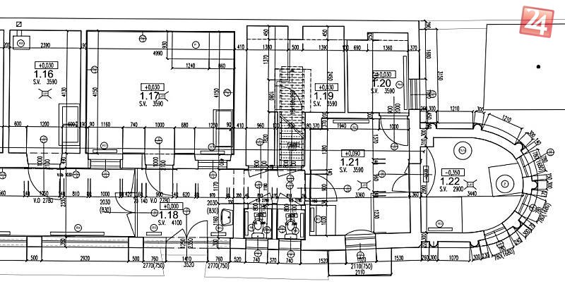
Galéria k článku Mesto Lučenec chce obnoviť secesnú vilu na Jókaiho ulici, žiada o dotáciu


Zdroj: Mesto Lučenec
3 / 12